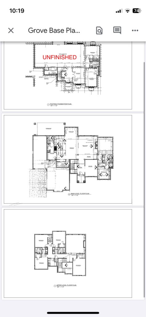
Build Beautiful